周防大島 ろくじの会
周防大島-帰農塾、営農塾で出会った仲間。
それぞれが取得した果物、野菜作りを通じて、作る楽しみから、加工、あるいは売る喜びを共有し、助け合う。ここ周防大島での生活をより良いものとし、それぞれの人生の楽園を目指します。
ジャム&ピザ
ピザ、ピザ、ピザ、ピザ・・・ ここは?
完成
待望の食品加工所 2室、完成。
食品加工所 「工房 ろくじ」の完成と会の一周年を祝し、
ゲストも迎えて、ささやかな宴を開きまし た。


メンバーの畑で採れた自慢の野菜でBBQ。
自慢の一品を披露。
会長こだわりの生地から作るピザ。
トマトだけのスムージー。 (これが美味しかった。)
途中雷雨の襲撃というハプニングに見舞われながらも、満腹の宴会でした。
ゲストのみなさん、今日はお越し下さり、ありがとうございました。
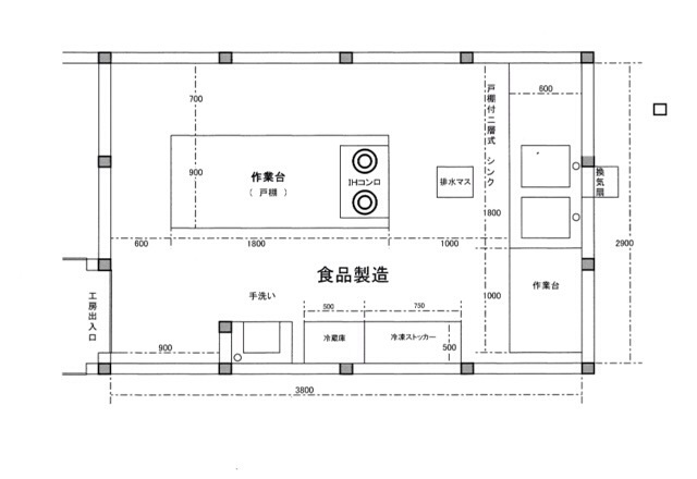
そして、その加工所は
設備は、シンク、作業台、IHコンロ、冷凍庫、冷蔵庫・・・
この部屋では主にビン詰。
ジャム、オイル漬け、等の保存用の加工食品を作ります。
そして、もう一つの部屋は

シンク、コンロ、ピザ釜、冷蔵庫・・・
ピザ、ドリンク等の調理室です。

私たちの美味しいもの創りは、ここから始まります。
食品加工所 「工房 ろくじ」の完成と会の一周年を祝し、
ゲストも迎えて、ささやかな宴を開きまし た。
メンバーの畑で採れた自慢の野菜でBBQ。
自慢の一品を披露。
会長こだわりの生地から作るピザ。
トマトだけのスムージー。 (これが美味しかった。)
途中雷雨の襲撃というハプニングに見舞われながらも、満腹の宴会でした。
ゲストのみなさん、今日はお越し下さり、ありがとうございました。
そして、その加工所は
設備は、シンク、作業台、IHコンロ、冷凍庫、冷蔵庫・・・
この部屋では主にビン詰。
ジャム、オイル漬け、等の保存用の加工食品を作ります。
そして、もう一つの部屋は
シンク、コンロ、ピザ釜、冷蔵庫・・・
ピザ、ドリンク等の調理室です。
私たちの美味しいもの創りは、ここから始まります。
無題
その全容が明らかになる!
プロフィール
HN:
事務局 松本
性別:
非公開
自己紹介:
ろくじの会事務局
会での出来事、いろいろ
レポートします
会での出来事、いろいろ
レポートします
最新記事
(05/13)
(03/20)
(11/15)
(10/18)
(07/27)

